Engenheiro Eletricista · CREA 5071228979 · Especialista em Automação Industrial
Fundador da Eletruz Automação · Rio Claro — SP
Anos de Experiência
Projetos Realizados
Anos como Professor SENAI
Treinamentos Internacionais

Sou Andrey Henrique dos Santos, Engenheiro Eletricista graduado com distinção — fui premiado com o Certificado de Honra ao Mérito pelo CREA por conquistar o 1º lugar no curso de Engenharia Elétrica.
Fundei a Eletruz Automação, empresa especializada em automação industrial, programação de CLP e IHM, projetos elétricos industriais e residenciais, SPDA e laudos técnicos. Tenho ainda Pós-Graduação em Engenharia de Segurança do Trabalho.
Minha trajetória inclui treinamentos técnicos internacionais na China (CAI Machine — impressão offset) e na Áustria (Battenfeld Cincinnati), além de 4 anos como professor na Escola SENAI SP.
Atendimento especializado para indústrias e residências com qualidade e segurança
Projeto, implantação e manutenção de sistemas de automação industrial. Soluções completas para otimizar processos produtivos.
Programação de Controladores Lógicos Programáveis e Interfaces Homem-Máquina. Siemens, Allen-Bradley, Delta, Omron.
Desenvolvimento de projetos elétricos completos para plantas industriais, incluindo dimensionamento e documentação.
Projetos elétricos residenciais dentro das normas ABNT, garantindo segurança, eficiência e conformidade legal.
Projeto e instalação de Sistemas de Proteção contra Descargas Atmosféricas (SPDA), conforme ABNT NBR 5419.
Elaboração de laudos técnicos elétricos, laudos de insalubridade e periculosidade, com validade legal.
Consultoria e serviços em Engenharia de Segurança do Trabalho, prevenção de acidentes e normas regulamentadoras.

Fundador e Engenheiro responsável pela empresa especializada em automação industrial e serviços de engenharia elétrica. Gestão completa desde a prospecção até a execução e comissionamento de projetos.
Docência em cursos técnicos de eletroeletrônica e automação industrial no SENAI SP, formando profissionais qualificados para o mercado de trabalho.
Treinamento técnico de 1 mês nas instalações da CAI Machine, especializada em impressão offset. Capacitação em sistemas de automação e operação de equipamentos de alta tecnologia.
Capacitação técnica na sede da Battenfeld Cincinnati, referência mundial em equipamentos de extrusão de plásticos. Treinamento em automação, controle e operação de linhas de extrusão de alta performance.
Graduação · Bacharelado
Formado em Engenharia Elétrica com distinção máxima. Agraciado com o Certificado de Honra ao Mérito pelo CREA por ser destaque em 1º lugar no curso.
Pós-Graduação · Especialização
Especialização em Engenharia de Segurança do Trabalho, habilitando para análise de riscos, normas regulamentadoras e gestão de segurança em ambientes industriais.
Trabalhos reais da Eletruz Automação — programação CLP, quadros elétricos, PCB, projetos AutoCAD e instalações em campo
Programação de automação industrial — controle de máquina CTP 600 S1200
Programação CLP
Programação em linguagem Ladder para CLP Delta — controle de processo industrial
Programação CLP
Programação Ladder para CLP Omron — sistema de esteiras industriais
Programação CLP
Configuração de sistema de segurança — E-Stop, portão de segurança e scanners
Engenharia de Segurança
Desenvolvimento de sistema de gestão com banco de dados — controle de clientes e financeiro
Desenvolvimento de Software
Interface do sistema personalizado com identidade visual da Eletruz Automação
Desenvolvimento de Software
Programação C embarcada para PIC16F628A — sistema de controle de gerador
Sistemas Embarcados
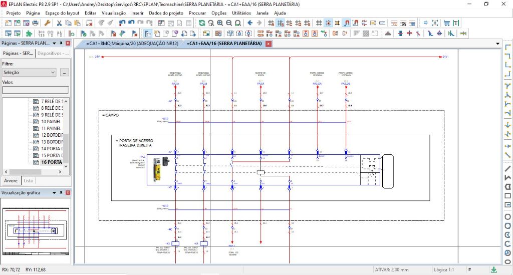
Diagrama elétrico de sistema de segurança para serra planetária — adequação NR12
Projeto Elétrico
Projeto completo de quadro elétrico com quadro de cargas e legenda
Projeto Elétrico
Projeto elétrico residencial completo com legenda e memorial de cálculo
Projeto Elétrico Residencial
Projeto do circuito PIC16F628A — relés, fonte de alimentação e conectores
Projeto Eletrônico
Projeto de placa de circuito impresso personalizada para automação industrial
Design PCB
Renderização 3D da placa projetada para controle de gerador com automação
Design PCB
Visualização 3D com relés, microcontrolador e conectores montados
Design PCB
Montagem de painel de controle com fonte SITOP, CLP e módulos de I/O Siemens
Montagem de Painel
Painel industrial com 9 inversores para controle de múltiplos motores — Siemens, WEG, Schneider
Montagem de Painel
Painel industrial com softstarter, CLP e fiação de bornes de controle
Montagem de Painel
Cabeamento completo de painel com calhas DIN, bornes e ferramentas Knipex
Montagem de Painel
Laboratório de automação com inversores, CLP, osciloscópio e equipamentos de teste
Laboratório
Materiais para automação: Siemens ET200, cabos Profibus e chaves industriais
Instalação em CampoPremiado pelo CREA por ser destaque em 1º lugar no curso de Engenharia Elétrica
Treinamentos técnicos em dois países: China (CAI Machine) e Áustria (Battenfeld Cincinnati)
4 anos como professor na Escola SENAI SP, formando profissionais para o mercado industrial
Fundador e Engenheiro Responsável da Eletruz Automação, atendendo indústrias na região
Entre em contato para solicitar orçamento, tirar dúvidas ou discutir seu projeto
Engenheiro Eletricista · CREA 5071228979
Disponível para projetos de automação industrial, elétrica e engenharia de segurança em Rio Claro, região e remotamente.